John Kivela Center Update Blog
Select Realty Gives to GLRC During 12 Days of Giving Event
Select Realty’s 12 Days of Giving event includes giving to local agencies during the holiday season. Day 5’s recipient was […]
August 8, 2023 Update
On August 8, Sen. Debbie Stabenow toured GLRC’s site for the upcoming John Kivela Center, the newest behavioral health campus, […]
July 28, 2023 Update
Additional renovation and construction to interior residence spaces, offices and hallways. Furnishings are being added to residential spaces.
July 20, 2023 Update
Siding has been added to the exterior of the building and additional renovation in the interior rooms and offices.
June 22, 2023 Update
Renovations continue and space is made for the upcoming residential facility and offices.
May 26, 2023 Update
Further renovations made.
April 28, 2023 Update
Cranes were brought in and the HVAC system was delivered.
April 27, 2023 Update
West End Health Foundation has pledged $300,000 over a 5-year period for the development of the behavioral health campus. GLRC […]
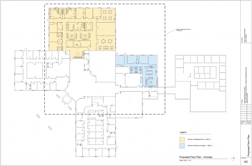
GLRC Completes Renovations on John Kivela Center, Holds Open House
Renovations are now complete as the former Teal Lake Medical Center in Negaunee is transformed into the new behavioral health campus, the John Kivela Center. The 33,000 square-foot facility will provide a women’s residential treatment program, a recovery house and more.
On Thursday, August 31 GLRC held its ribbon cutting ceremony and open house event for the facility. The event was attended by numerous guests include government officials and community members all in support of the new addition.














